Skip To Content

1231 6th Ave N

Nashville, TN 37208
  • $6,000
  • STATUS: Active
  • ON SITE: 65 Days
  • MLS #: RTC2988526
UPDATED: 41 min ago
$6,000
  • 0
    BEDS
  • 0.12
    ACRES
  • 0
    BATHS
  • 0
    1/2 BATHS
Type:
Commercial-Lease
Built:
1900
County:

School Ratings & Info

Description

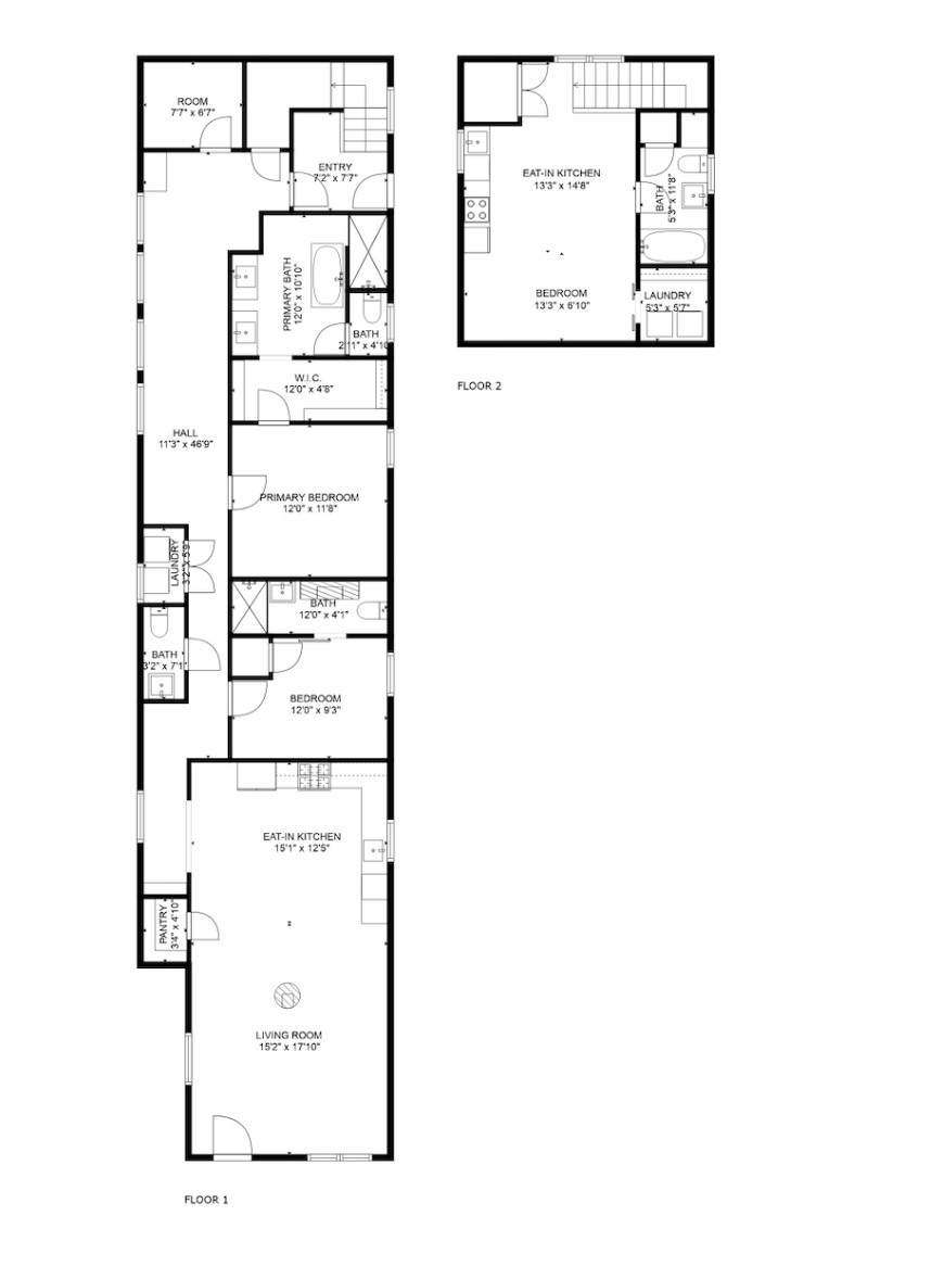
Located in the heart of Germantown, this stand-alone commercial property offers 2,289 square feet of interior space along with a 750-square-foot detached garage and a 30x30 courtyard. The flexible layout suits a wide range of uses, including creative offices, boutique retail, studio, wellness, or specialty services. Positioned in a highly walkable area surrounded by local restaurants, shops, and steady foot traffic, this is a rare opportunity to lease a freestanding building in one of Nashville's most sought-after urban neighborhoods. Owner/Agent For questions and showings contact Sagemont Commercial Real Estate agents Cameron Bice (205) 335-0105 cbice@sagemontre.com or Lanier Daniel 404-805-5459 ldaniel@sagemontre.com



Realtracs Solutions logoProperties marked with the IDX logo are provided courtesy of the RealTracs Internet Data Exchange Program. Some or all of the listings may not belong to the firm whose website is being visited (Huffaker and Hoke Realty Partners, 615-397-4024). IDX information © 2025 MTRMLS, Inc. Information is believed to be accurate but not guaranteed by the MLS or Huffaker and Hoke Realty Partners. IDX information is provided exclusively for consumers' personal, non-commercial use and may not be used for any purpose other than to identify prospective properties consumers may be interested in purchasing. Data last updated 2025-11-08T11:06:30.267.

Based on information submitted to the MLS GRID as of 2025-11-08T11:06:30.267. All data is obtained from various sources and may not have been verified by broker or MLS GRID. Supplied Open House Information is subject to change without notice. All information should be independently reviewed and verified for accuracy. Properties may or may not be listed by the office/agent presenting the information.
Click here for MLS GRID DMCA Notice
www.huffakerandhoke.com/homes/167562834
Print Image

1231 6th Ave N Nashville, TN 37208

  • Price: $6,000
  • Status: Active
  • On Site: 65 Days
  • Updated: 41 min ago
  • MLS #: RTC2988526
0
Beds
0
Baths
0
½ Baths
0.12
Acres
1900
Built
County:
Davidson
Property Description
Located in the heart of Germantown, this stand-alone commercial property offers 2,289 square feet of interior space along with a 750-square-foot detached garage and a 30x30 courtyard. The flexible layout suits a wide range of uses, including creative offices, boutique retail, studio, wellness, or specialty services. Positioned in a highly walkable area surrounded by local restaurants, shops, and steady foot traffic, this is a rare opportunity to lease a freestanding building in one of Nashville's most sought-after urban neighborhoods. Owner/Agent For questions and showings contact Sagemont Commercial Real Estate agents Cameron Bice (205) 335-0105 cbice@sagemontre.com or Lanier Daniel 404-805-5459 ldaniel@sagemontre.com
Exterior Features

Parking Total 0 Roof Metal Waterfront YN No

Interior Features

Cooling YN No Heating YN No

Property Features

Building Area Total 2289 Lot Size Area 0.12 Property Attached YN No Property Sub Type Mixed Use Special Listing Conditions Standard Zoning MUN

Realtracs Solutions logo Offered by Onward Real Estate: . Copyright 2025 RealTracs, Inc. Information Is Believed To Be Accurate But Not Guaranteed. Listings courtesy of Realtracs MLS as distributed by MLS GRID.


Realtracs Solutions logoProperties marked with the IDX logo are provided courtesy of the RealTracs Internet Data Exchange Program. Some or all of the listings may not belong to the firm whose website is being visited (Huffaker and Hoke Realty Partners, 615-397-4024). IDX information © 2025 MTRMLS, Inc. Information is believed to be accurate but not guaranteed by the MLS or Huffaker and Hoke Realty Partners. IDX information is provided exclusively for consumers' personal, non-commercial use and may not be used for any purpose other than to identify prospective properties consumers may be interested in purchasing. Data last updated 2025-11-08T11:06:30.267.

Based on information submitted to the MLS GRID as of 2025-11-08T11:06:30.267. All data is obtained from various sources and may not have been verified by broker or MLS GRID. Supplied Open House Information is subject to change without notice. All information should be independently reviewed and verified for accuracy. Properties may or may not be listed by the office/agent presenting the information.
Click here for MLS GRID DMCA Notice
 
https://bt-photos.global.ssl.fastly.net/nashville/orig_boomver_1_RTC2988526-1.jpg https://bt-photos.global.ssl.fastly.net/nashville/orig_boomver_1_RTC2988526-1.jpg https://bt-photos.global.ssl.fastly.net/nashville/orig_boomver_1_RTC2988526-1.jpg
Logo
Huffaker and Hoke Realty Partners
210 Robert Rose Drive
Murfreesboro TN, 37129